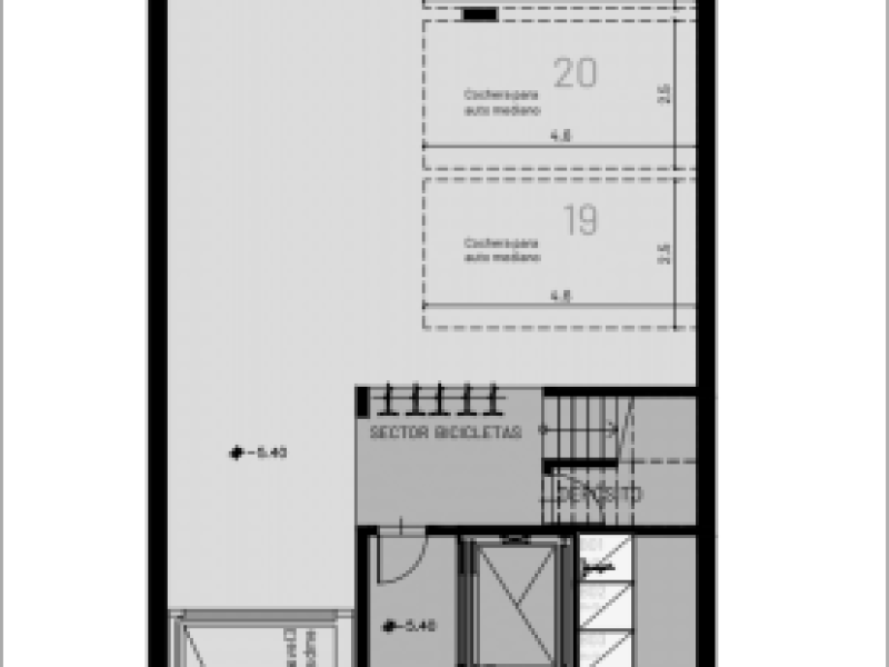
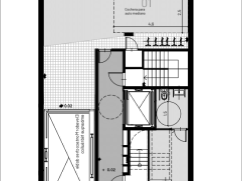
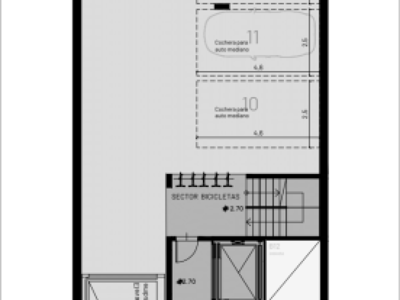
Se trata de una torre de 13 pisos, con departamentos de 1, 2, 3 y 4 dormitorios. La misma posee 3 niveles de cocheras. El edificio cuenta con espacios verdes de uso común, gimnasio y bauleras. Las unidades de 3 y 4 dormitorios son de categoría premium. En la terraza se encuentra la pileta, área de solárium, quincho semicubierto y kids zone intervenida por Crucijuegos.
Cada unidad está compuesta por puerta de seguridad de ingreso con tecnología de avanzada y cerradura Smart bluetooth.
Muebles de cocina de diseño, anafe y horno empotrado. Mesada de regrueso.
Pisos y revestimientos en porcelanato de primera línea, al igual que sanitarios y griferias.
Cerramientos de aluminio o similar de alta prestación con vidrios DVH.
Placares en dormitorios, de madera, completos (frente, fondo, laterales. Equipados con cajoneras, divisiones y barral).
CONSULTAR UNIDADES DISPONIBLES.
FINANCIACIÓN.





































